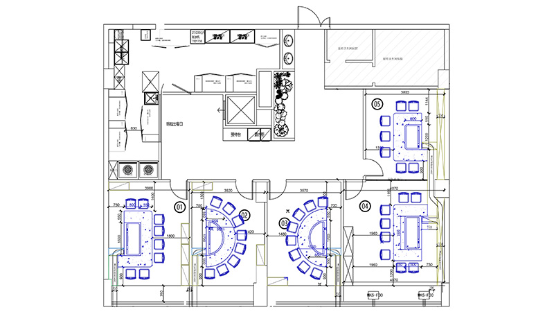
定制3台长方形,2台半圆形设备,铁板烧餐厅CAD设备布局图

5个包间,布局5台8人位铁板烧设备,共计40个板前就餐位

2台半圆形铁板烧设备,每个包间提供8个板前就餐位

3台长方形铁板烧设备,每个包间提供8个板前就餐位

4.jpg

设备发货

志铭铁板烧餐厅一站式开店服务

志铭一站式铁板烧餐厅开店服务

铁板烧·志铭造-志铭铁板烧拥有超20年高端铁板烧设备的研发和制造经验,获得多项国内外质量认证证书和专利技术,服务过数千家国内外特色铁板烧餐厅。

微信扫一扫,添加志铭实业客服随时沟通

微信扫一扫,添加志铭实业客服随时沟通